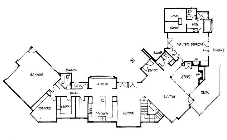
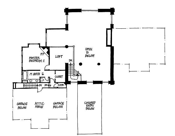
Hand-drawn floor plans, with optional room names, room sizes, and furniture, take the mystery out of computer-generated construction drawing floor plans.
Back to Top